Flächenorganisation, -struktur und Regelwerk
Facility Management: Flächenmanagement » Konzeption » Flächenorganisation » Flächenorganisation
UNTERNEHMEN, DIE IN FLÄCHENMANAGEMENT INVESTIEREN, OPTIMIEREN IHRE BETRIEBLICHEN ABLÄUFE UND AGIEREN NACHHALTIGER UND EFFIZIENTER.
Für ein effektives Flächenmanagement ist eine systematische Organisation der Flächen unerlässlich. Es ist wichtig, alle relevanten Faktoren zu berücksichtigen, um die Flächen bestmöglich zu nutzen und die Betriebskosten zu senken. Die Erfassung und Analyse von Daten spielt dabei eine zentrale Rolle, um fundierte Entscheidungen zu treffen.
Flächenmanagements durch systematische Planung
- Normen
- Keine Normen
- Prozesse
- Informationen
- Hilfsmittel
- Führungsaufgabe
- Ziele
- Flächenstruktur
- Flächenmessung
- Entfernungsmessung
- Allgemeine Messung
- Messung
- Brutto-Grundfläche (BGF)
- Unterkategorien
Zuordnung von Normen
Ein zentrales Facility Produkt aus der Kategorie Arbeitsplätze {1400} ist das Flächenmanagement {1420}. Im Gesamtkontext des Facility Managements hat es eine besondere Bedeutung, da die Kosten für die Bereitstellung von Flächen (Bau, Kauf, Miete, Leasing) im Vergleich zu den Betriebskosten, wie Bedienung und Instandsetzung, verhältnismäßig hoch sind. Das Hauptziel des Flächenmanagements besteht darin, durch eine optimale Flächennutzung die "Produktivität" der Flächen zu steigern und gleichzeitig die Kosten zu reduzieren.
Das nachstehende Beispiel mit angenommenen Zahlen verdeutlicht, wie das Flächenmanagement objektiv Einsparungen generieren kann.
Kostenreduktion Eigennutzung versus Vermietung
In der Tabelle nehmen wir an, dass die Kapitalkosten pro Quadratmeter BGF zehn Euro betragen und die Betriebskosten drei Euro. Das ergibt Kosten pro Quadratmeter von 13 €.
Wenn man einen Quadratmeter vermietet, muss man zwar die Kapitalkosten tragen, kann aber Mieteinnahmen (im Beispiel 16 €) und einen Zuschlag für Wagnis und Gewinn (im Beispiel 2 €) erheben.
Durch die Übertragung von einem Euro der Betriebskosten im Mietvertrag an den Mieter, beispielsweise für sogenannte Schönheitsreparaturen, kann man einen weiteren Euro sparen. Das ergibt einen Erlös von 6 €/m². Das entspricht einer Kosteneinsparung pro Quadratmeter von 19 €.
Mit einer anderen Darstellung auf Basis derselben Zahlen ergibt sich die folgende Tabelle. Unter der Annahme dieser Zahlen und der idealisierten Vorstellung, dass beide Kostenvorteile mit dem gleichen Aufwand erzielt werden, zeigt sich, dass der Facility Manager bei einer Kosteneinsparung durch organisatorische Projekte oder wissenschaftlich-technische Maßnahmen von 3 % einen Kostenvorteil von 4500 € erzielt.
Wenn der Flächenmanager ebenfalls 3 % seiner verfügbaren Gesamtfläche einspart, erzielt er einen Kostenvorteil von 28.500 €. Das ist mehr als das Sechsfache!
Eigennutzung vs. Vermietung
| [€/m² BGF] | [€/m² BGF] | |||
|---|---|---|---|---|
| bei Eigennutzung | Kapitalkosten der Fläche (Finanzierung der Investitionen) | -10 | bei Vermietung | -10 |
| bei Eigennutzung | Mieteinnahmen | 0 | bei Vermietung | 16 |
| bei Eigennutzung | Betriebskosten (Bedienung und Instandhaltung) | -3 | bei Vermietung | -2 |
| bei Eigennutzung | Zuschlag für Wagnis und Gewinn (10%) | 0 | bei Vermietung | 2,0 |
| bei Eigennutzung | Summe | -13 | bei Vermietung | 6 |
| Kosteneinsparung durch Flächenreduktion (Saldo) | 19 |
Kostenreduktion im FM und Flächenmanagement
In einigen Gliederungen des Facility Managements, wie beispielsweise der ursprünglichen klassischen Einteilung nach infrastrukturellem, technischem und kaufmännischem Facility Management, wird das Flächenmanagement oft gleichrangig aufgeführt. Dies haben wir berücksichtigt und mit den oben gezeigten Tabellen die besondere Bedeutung des Facility Produktes Flächenmanagement hervorgehoben.
Allerdings orientieren wir uns an einer anderen Einteilung des FM, nämlich der in der DIN EN 15221 Teil 4, die die Definition der Facility Produkte vorgibt, wobei Flächenmanagement nur eines davon ist.
Das ist der Stand der Dinge. In Bezug auf die Produktdefinition des Flächenmanagements und seine normative Einordnung sind wir also auf dem richtigen Weg. Aber wie sieht es mit den Details aus? Die DIN EN 15221 bietet uns hier nur begrenzte Informationen. Daher sind wir auf in Deutschland geltende Normen zum Thema Flächenmanagement angewiesen. Welche Ressourcen stehen uns in dieser Hinsicht zur Verfügung? Wir stellen fest, dass es keine spezifische Norm für Flächenmanagement gibt. Allerdings wird das Flächenmanagement in einigen Normen oder Richtlinien ausführlich behandelt. Besonders hervorzuheben sind hier:
Wichtigkeit des Flächenmanagements
| Betreiben | Vermieten | |||
|---|---|---|---|---|
| BFG vor Fl.mgmt. | 50.000 | m² BGF | ||
| Gesamtkosten des FM bezogen auf 100% BGF | 150.000 | €/a | ||
| Kosteneinsparung beim FM | 3.0 | % | ||
| Kosteneinsparung beim FM | 4.500 | €/a | ||
| Vermietung von % der BGF infolge Flächenmgmt. | 3,0 | % | ||
| Kosteneinsparung durch Flächenreduktion (Saldo) | 28.500 | €/a | ||
| Effektivität | 633% |
die DIN 32736,
die DIN EN 1501, Teil 6 (siehe nunmehr Anhang 06-1 DGUV 215-441 Büroplanung)
und die GEFMA-Richtlinie 130.
(ausgewählte) Normative zum Thema Flächenmanagement
| in DIN 32736 als Punkt 4 enthalten | GEFMA-Richtlinie 130 | DIN EN 15221-6 |
|---|---|---|
| Flächenmanagement (FLM) | Flächenmanagement - Leistungsbild | Facility Management - Teil 6: Flächenbemessung *) im Facility Management |
| Nutzerorientiertes Flächenmanagement | Ziele des Flächenmanagements | Allgemeines |
| Nutzungsplanung räumliche Organisation von Arbeitsprozessen und Arbeitsplätzen ergonomische Arbeitsplatzgestaltung flacheökonomische Optimierung Optimierung von Wegebezielningen Planung von Belegungs-Umbelegung Prozessen | as Sicht des Mieters. Nutzers aus Sicht des Vermieters | Anwendungsbereich Normative Verweisungen Begriffe |
| Anlagenorientiertes Flächenmanagement | Begriffsbestimmungen Fläche | Messverfahren und -einheiten |
| Flächen und raumbezogene Analyse im Hinblick auf Baukonstruktionen (bauliche Anlagen und technische Gebäudeausrüstung Dazu gehören insbesondere raumbezogene Solverte für Lufttemperatur, Luftfeuchte und geforderte Netzanschlisse Verknüpfing von raumbezogenen Nutzungsanforderungen mit den Leistungen des TGM | Flichen nach DIN 277 Flächen nach DIN 4543 Metliche mach gil'MF-B und MF-H Arbetsplatztliche nach GEFMA 195/2 Grundflächenzahl Gescgißflachenzahl | Einheiten Abstand Fläche Volumen |
| Immobilienwirtschaftlich orientiertes Flächenmanagement | Bewertung der Fläche | Rahmen für die Flächenmessung von Gebäuden |
| Verknüpfung von Fächen und Räumen zu vermietbaren EinheitenBelegungsberatung und BelegungssteuerungErfassen und Bewerten von Leerständen Koppeking raumbezogener Bedarfsforderungen undService levels an Mietverträge und Mietnebenkostenabrechnungen | Mietfläche/ Vermietete Fiche Hauptmitz-/ Arbeitsplatzfläche Nebennutz-/ Verkehrsfläche Funktionsfläche Flächenzuschnitt, -anordnung Flächenflexibilität Flächennutzungs- u. Belegungsgrad Spezifischer Flächenbedarf | Allgemeines Ebenenfläche (EF) Unverwendbare Grundfläche (UGF) Brutto-Grundfläche (BGF) Außenwand-Konstruktionsgrundfläche (AKF) Innen-Grundfläche (IGF) Innenwand-Konstruktions-Grundfläche (IKF) Netto-Grundfläche (NGF) Trennwand-Grundfläche Netto-Raumflache (NRF) Technikfäche (TF) Verkehrsfläche (VF) Sanitärfläche (SF) Nutzfläche (NF) |
| Serviceorientiertes Flächenmanagement | Leistungsbild Flächenmanagement | |
| Zeitmanagement von Raumbelegungen Verpflegungs-Logistik in Liegenschaften Verpflegungs-Bewirtschaffung von Kontererräumen Schulungsräumen und dergleichen Medien- und konferenztechnischer Service für Büro-, Konferenz-, Veranstaltungsräume und dergleichen flächen- bzw. raumbezogene Reinigungsleistungen flächen- bzw. raumbezogene Sicherheitsleistungen | Mitwirkung bei der Flächenplanung Flächenoptimierung Vorhabung von Reserve flächen | |
| Dokumentation und Einsatz informationstechnischer | Methoden des Flächenmanagements | Flächenmessung außerhalb von Gebäuden |
| Dokumentation von Plänen und alphanumerischen Daten für das Flächenmanagement (verfügbare Belegungsflächen, Dokumentation von Belegungszuständen bzw. Mietflächen, Nutzungslayouts, Reinigungsplane, Schlisseplane usw.) Einbindung der flachenorientierten Dokumentation in ein geeignetes CAFM-System Enbindung von immobilienwirtschaftlichen Geschäftsprozessen in zugehörige informationtechnische Systeme (Mietvertragsverwaltung, flächenorientierte Umlagen und Verrechnungssysteme) | Bildung von Flächenkennwerten Benchmarking Interne Flächenberechnung Benötigte Daten für FLM Bestandsdaten Fläche und Belegung Vertragsdaten Kosten Werkzeuge für FLM Raumbuch CAD Flächenbedingte Kosten Flichenbe etstellingskosten Flächenbewitschaltungskosten | Zusätzliche Terminologie Klassifizierung Anhänge A bis C Fläche Matrix, Adrian, bebaute und nicht überbaute Flächen, Park Buchen, Wände und weiterhin einige Beispiele für Technik-, Sanitär, Nutz- und Verkehrsflächen |
Weitere erwähnenswerte Normative, die im Zusammenhang mit dem Flächenmanagement eine Rolle spielt, sind folgende:
DIN 276 Kosten im Hochbau
DIN 277 Grundflächen und Rauminhalte von Bauwerken im Hochbau
Teil 1: Begriffe, Berechnungsgrundlagen
Teil 2: Gliederung der Nutzflächen, Funktionsflächen und Verkehrsflächen (Netto-Grundfläche)
DIN 18960 Nutzungskosten
DIN 4543 -1 Büroarbeitsplätze; Flächen für die Aufstellung und die Benutzung von Büromöbeln Teil 1: Sicherheitstechnische Anforderungen, Prüfungen
E DIN 4543 -2 Büroarbeitsplätze; Flächen für die Aufstellung und die Benutzung von Büromöbeln Teil 2: Ergonomische Gestaltung von Büroarbeitsplätzen
DIN 31051 Instandhaltung; Begriffe und Maßnahmen
VDI Richtlinie 3644 Flächen für die Fabrikplanung
GEFMA 108 Betrieb-Instandhaltung-Unterhalt von Gebäuden und gebäudetechnischen Anlagen; Begriffsbestimmungen
GEFMA 195/2 Ermittlung von Arbeitsplatzkosten
GEFMA 400 IT-Systeme für Facility Management; Begriffsbestimmungen, Klassifizierung
gif MF-B Richtlinie zur Berechnung der Mietfläche für Büroraum
gif MF-H Richtlinie zur Berechnung der Mietfläche für Handelsraum
WertV (Wertermittlungsverordnung)
II. BV Verordnung über wohnungswirtschaftliche Berechnungen; Zweite Berechnungsverordnung.
| A 5.2 Geschäftsprozess | 6.746 Liegenschaftscontrolling.vsd |
|---|---|
| A 5.3 Geschäftsprozess | 6.210 Flächenmanagement Prozesslandschaft.vsd |
| A 5.3.1 Geschäftsprozess | 6.210 Flächenmanagement.vsd |
| A 5.3.2 Geschäftsprozess | 6.210 Operatives Flächenmanagement.vsd |
| A 5.3.3 Geschäftsprozess | 6.214.1 Belegungsplanung.vsd |
| A 5.3.3.1 Geschäftsprozess | 6.841 Konferenzraumverwaltung.vsd |
| A 5.3.3.2 Geschäftsprozess | 6.841 Reservierung von Konferenzräumen V01 .vsd |
| A 5.3.4.1 Geschäftsprozess | 6.221 Neumöblierung Planung Layout.vsd |
| A 5.3.4.2 Geschäftsprozess | 0.920 Neumöblierung Tätigkeitsplanung.vsd |
| A 5.3.5 Geschäftsprozess | 6.220 Umzugsmanagement.vsd |
| A 5.3.6 Geschäftsprozess | 6.650 Schließmanagement.vsd |
| A 5.4 Geschäftsprozess | 6.744 Gebäudekostenverrechnung.vsd |
| A 5.5.1 Geschäftsprozess | 4.300 Anmietungsverwaltung.vsd |
| A 5.5.2 Geschäftsprozess | 4.303 Anmietung oder Ankauf.vsd |
| A 5.5.3 Geschäftsprozess | 6.723 Vertragsanpassung Anmietung.vsd |
| A 5.5.4 Geschäftsprozess | 6.723 Kündigung Anmietung.vsd |
| A 5.5.5 Geschäftsprozess | 6.723 Mietverwaltung.vsd |
| A 5.5.6 Geschäftsprozess | 6.722 Mieterbetreuung.vsd |
| A 5.6.1 Geschäftsprozess | 6.721 Vermietung.vsd |
| A 5.6.2 Geschäftsprozess | 6.723 Vertragsanpassung Vermietung.vsd |
| A.5.6.3 Geschäftsprozess | 6.723 Kündigung Vermietung.vsd |
Keine Normen, aber wichtige Regeln
Obwohl es keine spezifische Norm für das Flächenmanagement gibt, haben wir zahlreiche technische Regeln zur Verfügung, die das Flächenmanagement im Sinne des Standes der Technik unterstützen. In diesem Abschnitt werden die wichtigsten dieser Regeln aufgelistet. Anhand einer bestimmten Regel werden wir detailliert untersuchen, um den zugrunde liegenden Gedanken besser zu verstehen. Die hier präsentierte Auswahl stammt aus dem Verzeichnis des Autors und dient lediglich als Beispiel; sie ist nicht abschließend.
Prozesse des Flächenmanagements
Alle wichtigen Geschäftsprozesse, einschließlich derjenigen, die mit dem Flächenmanagement zusammenhängen, müssen systematisch erfasst und dokumentiert werden. Siehe Anhang 08 für weitere idealtypische FLM-Geschäftsprozesse.
Allgemeines zu Flächenmanagement
Die nachfolgenden Ausführungen beschreiben die grundlegenden Anforderungen und Strategien des Flächenmanagements. Daraus resultieren auch die Anforderungen an die Flächenmanagement-Funktionen einer CAFM-Software.
Werkzeuge zur Optimierung des Flächenmanagements
Ein zentrales Hilfsmittel für das Flächenmanagement ist eine passende CAFM-Software. Mit ihr lässt sich die Fläche des Unternehmens aktuell dokumentieren und bestimmte Eigenschaften zuordnen (Raumbuch). Dadurch können auch grafische Übersichten erstellt werden. Die nachstehende Abbildung zeigt zum Beispiel die Nutzungshäufigkeit einer typischen Bürofläche. Da in den meisten Büros Normalschicht vorherrscht, ist es nachvollziehbar, dass die Büros im Verhältnis zur Wochenzeit meistens ungenutzt sind. Dabei ist die Arbeit im Homeoffice in dieser Betrachtung noch nicht einmal einbezogen!
Fallbeispiel eines Phantasten:
Mit einem extremen theoretischen Beispiel möchten wir das mögliche Optimierungspotenzial für Büroräume untersuchen.
Basierend auf dem oben genannten Bild gehen wir davon aus, dass etwa ein Drittel aller Büroarbeiten von zu Hause aus erledigt werden könnten. Weiterhin setzen wir voraus, dass eine passende gesellschaftliche Infrastruktur existiert und die Menschen bereit wären, ihre Büroarbeit im "Schichtbetrieb rund um die Uhr" zu verrichten, also im kontinuierlichen 4-Schichtsystem. Unter diesen Überlegungen würden nur noch 12 % der aktuellen Bürofläche benötigt - anstelle von 25 Stockwerken nur noch 3! Es ist klar, dass diese Überlegung rein spekulativ ist und die Realität anders aussieht.
Zur Optimierung der Flächennutzung werden immer häufiger Simulationsprogramme eingesetzt. Die Hauptanforderungen an solche Simulationsprogramme sind:
die Existenz einer Schnittstelle zur CAFM-Software.
Selbstverständlich ist eine weitere wichtige Voraussetzung, dass die in derCAFM-Software gespeicherten Flächen der Norm entsprechen, um mit dem Simulationsprogramm korrespondieren zu können
und die Darstellung der auf den Flächen stattfindenden Prozesse in Form von Workflows.
die Anschaffung eines Zusatzmoduls „Simulation“ (grobe Kostenschätzung ca. 3.000 €), das mit dem Workflow-Programm kompatibel ist.
Aufbau von Simulationsmodellen - auch unter Anwendung von Microsoft Visio® möglich (andere Produkte vergleichen),
Prozessabläufe wie gewohnt zeichnen (z.B. MS Visio) und anschließend mit simulationsrelevanten Eingabegrößen wie
- Ablaufzeiten,
- Kosten und
- Mengen u.a. ergänzen,
Die Simulation wird in drei Hauptschritten durchgeführt, nämlich:
Visualisierung: Zunächst erstellt man die in Frage kommenden Prozessabläufe in der gewohnten Umgebung (z.B. durch Microsoft Visio.) Anschließend ergänzt man die Prozessabläufe um simulationsrelevante Parameter wie beispielsweise
- Prozesszeiten,
- Verfügbarkeiten,
- Kosten
- und Mengengerüste, etc.
und erzeugt daraus auf Knopfdruck ein Simulationsmodell. Das Simulationsmodell visualisiert und animiert dann die Abläufe innerhalb des (Visio-) Flowcharts.
- Ressourcenauslastungen,
- Durchlaufzeiten,
- Bestandsverläufe, etc.,
analysiert man die Schwachstellen und die Engpässe in den Prozessabläufen.
Optimierung: Ein im Prozess-Simulator eingebauter Szenario-Manager unterstützt bei der Beantwortung von "Was-Wäre-Wenn"-Fragestellungen. Mit seiner Hilfe variiert man den Einfluss der Prozessparameter auf Ihre Zielkriterien und analysiert und optimiert somit risikolos den Gesamtprozess, ohne jeweils in das reale System eingreifen zu müssen.
Simulationsmodelle erzeugen einen oft spektakulären „Aha-Effekt“ bei den Betrachtern und das insbesondere bei den Betrachtern, die den Prozessen nicht sehr nahestehen. Insofern ist Simulation auch ein probates Hilfsmittel bei der Werbung für die Finanzierung bestimmter Maßnahmen. Internes Marketing für den FM-Bereich kann man so wirksam unterstützen. Es ist aber nicht zu verkennen, das Simulation auch etwas kostet:
Flächenmanagement als Leitungsaufgabe
Das Flächenmanagement, welches die Bereitstellung von Nutz- und Arbeitsflächen gewährleistet, die optimal auf das Anforderungsprofil abgestimmt sind und dabei die Kosten minimiert, ist eine zentrale Managementaufgabe, die alle Aspekte des Facility Managements berührt. Die bestmögliche Gestaltung und Nutzung von Flächen wird als entscheidender Produktionsfaktor angesehen. Ein effizientes Flächenmanagement ist essentiell für eine strategische Unternehmensausrichtung und die bestmögliche Nutzung der Ressourcen "Fläche und Raum", um ein Unternehmen wettbewerbsfähig zu halten.
Wertschöpfende Geschäftsprozesse, wie Produktion und Dienstleistungen, sowie wertschöpfungsunterstützende Prozesse, wie die Verwaltung von Unternehmensaufgaben, sind auf die Nutzung geeigneter Grundstücks- und Gebäudeflächen angewiesen.
Daher hat das Flächenmanagement im Facility Management eine zentrale Rolle.
von Grundstücks- und Gebäudeflächen für die optimale Nutzung und Wertschöpfung. Flächen sind ein erheblicher Kostenfaktor. Das Ziel ist es, Transparenz über die genutzten und verfügbaren Flächen zu erhalten und alle Möglichkeiten zur Flächenoptimierung zu nutzen. Flächen, die reduziert werden können, verursachen keine Kosten für Verwaltung, Instandhaltung oder Pflege, es sei denn, sie werden für einen anderen wertschöpfenden Prozess, wie zum Beispiel die Vermietung, genutzt.
Das Einsparpotenzial ist dementsprechend groß. Nicht optimal genutzte Flächen werden schnell identifiziert. Für Umzugsplanungen, Umstrukturierungen, Erweiterungen oder den Rückbau von Nutzflächen sind genaue Informationen über die vorhandenen und benötigten Flächenzusammensetzungen unerlässlich.
Wir haben bereits untersucht, welche Normen oder Richtlinien für das Flächenmanagement relevant sein könnten, insbesondere im Hinblick auf die Arbeitsplatzbeleuchtung. Letztlich haben wir uns in diesem FM-Buch dafür entschieden, hauptsächlich die GEFMA-Richtlinie 130 als Grundlage zu verwenden. Aus unserer Sicht erfüllt sie am besten den gewünschten Ansatz und geht pragmatisch mit dem Thema um.
Danach ist Flächenmanagement zum einen eine Flächenverwaltung, d. h.
eine Darstellung sämtlicher Flächen eines Standortes, eines Gebäudes, eines Geschosses, einer Raumeinheit,
sowie die Zuordnung der Flächen zu Funktionen, Abteilungen, usw.
und eine Durchführung von Flächenoptimierungen.
DAS MANAGEMENT DER VERFÜGBAREN FLÄCHEN IN HINBLICK AUF IHRE NUTZUNG UND VERWERTUNG WIRD, JE NACH INTERESSENSAUSRICHTUNG, WIE IM FOLGENDEN DARGESTELLT:
| Orientierung | Wer? bzw. Was? | |
|---|---|---|
| Nutzerorientiert | Facility Management | die Planung der Flächennutzung der Flächenbelegung |
| Anlagenorientiert | die flächen- und raumbezogenen Nutzeranforderungen in Bezug auf Baukonstruktionen und Technische Gebäudeausrüstung (TGA) | |
| Eigentümerorientiert | Property Management | Möglichst hohe Flächenproduktivität |
| Immobilienwirtschaftlich orientiert | die Schaffung vermietbarer Flächeneinheiten, Flächen als Grundlage von Mietverträgen und Nebenkostenabrechnungen, keine Leerstände | |
| Serviceorientiert | Aus Dienstleistungssicht, Facility Management | die Dienstleistungen auf der Fläche (Instandhaltung, Reinigung, Sicherheit, Catering, usw.) |
Ziele aus Sicht des Facility Managements
Unternehmen und Organisationen haben individuelle Ziele bezüglich ihrer Flächennutzungen, die aufgrund ihres speziellen Kerngeschäfts und ihrer jeweiligen Interessen variieren. Die Hauptfunktion der Flächen besteht darin, dem Nutzer ein effizientes Kerngeschäft entsprechend seiner Arbeitsprozesse zu ermöglichen.
Die wirtschaftlichste Lösung ergibt sich, wenn der tatsächliche Flächenbedarf mit den verfügbaren Flächen übereinstimmt. Die Größe der Fläche als Kostenfaktor ist somit ein Optimierungsfaktor. Das Bestreben nach einer optimalen Balance zwischen Wertschöpfung und flächenbedingten Kosten führt zu einer verbesserten wirtschaftlichen Effizienz der Flächennutzung. Überdimensionierte Produktions-, Lager- oder Büroflächen sind ungenutzte Ressourcen.
Grundsätzlich kann die Produktivität durch eine verbesserte Qualität und Flächenausnutzung bei definierter Größe gesteigert werden. Bei gleichbleibender Produktivität kann die Fläche durch geeignete Maßnahmen reduziert werden. Beide Ansätze können kombiniert werden, solange dies nicht zu Lasten des Servicelevels geht und die Maßnahmen transparent und vertraglich festgelegt sind.
Obwohl zwischen Facility Management und Flächenmanagement unterschieden wurde, ist das Flächenmanagement ein Teil des Facility Managements gemäß DIN EN 15221. Daher sind Verbesserungen keine konkurrierenden Maßnahmen. Das strategische Facility Management befasst sich langfristig mit der Sicherstellung der notwendigen Flächenressourcen für das Unternehmen und dient als wesentliches Steuerungsinstrument der Unternehmensführung.
Die Fläche soll die Produktions- oder Arbeitsprozesse optimal unterstützen und die maximale Produktivität und Wertschöpfung zum Ziel haben. Die damit verbundenen Kosten für die Flächenbereitstellung und -bewirtschaftung müssen betrachtet und optimiert werden. Ein Masterplan bietet langfristige Planungssicherheit für alle Beteiligten. Ein strategisches Flächenmanagement spielt dabei eine entscheidende Rolle, da es den Flächenplan und die damit verbundenen Kosten voraussagt. Dieser Plan ist in den Gesamtplan integriert und gibt Auskunft über die mittel- und langfristige Unternehmensentwicklung.
Die strategische Bedeutung des Bürobereichs nimmt stetig zu. Der Check "Gute Büroarbeit" des Deutschen Netzwerk Büro e.V. stellt einen modernen Qualitätsstandard für Unternehmen dar. Dieser Check kann Unternehmen helfen, aktuelle Herausforderungen zur Verbesserung der Büroarbeit zu identifizieren.
Die Anforderungen an Büroflächen haben sich erheblich gewandelt und sind komplexer geworden. Mit dem Aufkommen von Teamarbeit, die oft interdisziplinäre Projektarbeit beinhaltet, hat die Prozessorientierung im Büro zugenommen. Es geht nicht nur um die Größe der Fläche als Kostenfaktor, sondern auch um die funktionale Anordnung der Arbeitsplätze zueinander, wie die folgenden Stichpunkte verdeutlichen:
Es geht nicht nur um die Größe der Fläche als Kostenfaktor, sondern auch um die funktionale Anordnung der Arbeitsplätze zueinander, wie die folgenden Stichpunkte verdeutlichen:
Verwaltung und Optimierung von vorhandenen Flächen in Bestandsgebäuden,
Neuvermietung von Flächen in Bestandsgebäuden,
Verkauf oder Vermietung von Flächen in neuen Gebäuden.
Deshalb sollte für jede Immobilie bzw. Flächeneinheit geprüft werden, welche Ziele das Flächenmanagement haben soll. Ist das Unternehmen selbst Nutzer oder Vermieter? Oder sollen Gebäude bzw. Flächen ggf. am Markt freigesetzt werden?
Ziele aus Sicht des Real Estate Managements
Unternehmen, die als Investoren, Verkäufer oder Vermieter agieren, streben danach, eine möglichst große Fläche zu einem hohen Preis zu verkaufen oder zu vermieten. Für Nutzer, sei es als Käufer oder Mieter, sind eine hohe Qualität, Flexibilität und Flächeneffizienz entscheidend. Dies erhöht die Vermarktungschancen.
In den letzten Jahren sind die laufenden Kosten, die ein Nutzer trägt, auch für den Investor oder Verkäufer/Vermieter immer relevanter geworden. Die Nebenkosten, oft als "2. Miete" bezeichnet, spielen dabei eine zentrale Rolle. Geringe Flächenbewirtschaftungskosten eines Gebäudes, insbesondere angesichts steigender Energiekosten, bieten einen zusätzlichen Wettbewerbsvorteil. In diesem Kontext ist das Flächenmanagement in folgenden Situationen von Bedeutung:
direkte und persönliche Kommunikation außerhalb geplanter Besprechungen
Spontanität beim Austausch von Ideen
Flexibilität räumlicher Zuordnungen von Personen, Ausstattungen und Einrichtungen
Variabilität der Teamgrößen.
Um die Vielfalt der operativen Anforderungen an das Flächenmanagement zu verdeutlichen, mögen einige Fragen gestellt werden:
Wie kann das Raumangebot bei gleichbleibender Arbeits-Qualität anpassungsfähig bleiben?
Wie kann man trotzdem sicherstellen, dass Teams nicht auseinandergerissen werden (trennende Wände)?
Wie können ansteigende Kosten vermieden werden, die durch interne Umzüge, ständige Umbauten, Arbeitsunterbrechungen, usw. entstehen?
Die althergebrachten klassischen Raumformen und Arbeitsmethoden haben ihre Grenzen erreicht:
Aufgrund der Technisierung kann an verschieden Orten gearbeitet werden (Arbeit im Büro, beim Kunden, unterwegs, in der Zweigniederlassung, im Home-Office, usw.).
Ein Teil der Mitarbeiter ist auf Weiterbildung, im Urlaub, krank, usw.
Die Arbeitszeiten sind noch viel flexibler geworden (Gleitzeit, Erziehungsurlaub).
Systematische Organisation und Optimierung
In der Tabelle "Gegenüberstellung wichtiger Normative des Flächenmanagements" haben wir dargestellt, wie Normen im Flächenmanagement Anwendung finden. Daher ist es sinnvoll, sich bei der Flächenstruktur strikt an der DIN EN 15221, insbesondere an deren Teil 6 "Flächenbemessung im Facility Management", zu orientieren. Da die Flächen als Kostenträger für die Aktivitäten dienen, die darauf stattfinden, ist es notwendig, die teilweise sehr unterschiedlichen Begrifflichkeiten und Bezeichnungen bezüglich der Flächen international zu harmonisieren.
Dieser Teil 6 der genannten Norm soll genau diese Aufgabe erfüllen. Nur so ist es möglich, Facility Managementaufträge auch innerhalb der Europäischen Union effizient zu bearbeiten. Die Vergaberichtlinien, insbesondere für öffentliche Aufgaben, schreiben ab einem bestimmten Schwellenwert eine internationale Ausschreibung vor. Aus diesem Grund ist eine Standardisierung erforderlich, damit die Daten aus Flächenmessungen in Zukunft einheitlich verstanden und interpretiert werden können. Das europäische Komitee für Bauökonomie (CEEC) hat festgestellt, dass die europäischen Länder die Grundflächen ihrer Gebäude auf ähnliche Weise vermessen. Die Gruppierung und Kodierung dieser Komponenten variiert jedoch von Land zu Land erheblich.
Fallbeispiel:
Zwischen den Nachbarländern Niederlande und Deutschland kann ein Vergleich eines Gebäudes irreführend sein, wenn die Netto-Grundfläche (ne: Netto Vloeroppervlakte) eines nach NEN vermessenen niederländischen Gebäudes mit einem nach DIN vermessenen deutschen Gebäude direkt gegenübergestellt wird. Die Tatsache, dass Messungen im selben Gebäude unter Anwendung unterschiedlicher nationaler Normen zu Abweichungen von bis zu 30% führen können, unterstreicht die Notwendigkeit einer Vereinheitlichung der Flächenmessung.
In Unternehmen und Organisationen sind nahezu alle Arten von Nutzflächen vertreten. Die Komplexität der Topologie der verschiedenen Flächen, insbesondere in großen Unternehmen mit ihren spezifischen Nutzungen, erfordert eine klare Strukturierung der Flächen.Grundlage hierfür ist ein Flächensystem, in dem
die Lage der Flächen zu einander
ihre Nutzung
und die Berechnungsgrundlagen für die Ermittlung der Flächen
beschrieben sind. Die im Folgenden dargestellte Strukturgibt eine Orientierung. Zunächst sollen die wichtigsten Begriffe aus der Norm für die Bemessung der Flächen definiert werden.
Begriffsdefinition für die Flächenbemessung (DIN EN 15221 Teil 6)
| Begriff | Erläuterung |
|---|---|
| Abstand [m] | numerischer Wert eines eindimensionalen Gegenstandes, gemessen entlang der kürzesten Verbindungslinie zwischen zwei Punkten |
| Fläche [m²] | numerischer Wert einer zweidimensionalen Fläche, meist berechnet als das Produkt aus zwei Abstandsmaßen |
| Volumen [m³] | numerischer Wert eines dreidimensionalen Begriffs, meist berechnet als das Produkt aus allen drei Abstandsmaßen |
| Raum (space) | tatsächlich oder virtuell begrenzte/s Fläche oder Volumen |
| Raum (room) | Teil eines Gebäudes, der vollständig oder teilweise von Wänden begrenzt ist, dessen Boden und/oder Decke Teil der Konstruktion des Gebäudes bildet und dessen Grundfläche für Menschen zugänglich ist |
| Boden | unterer Abschluss eines Raumes |
| Decke | im Allgemeinen die Konstruktion der oberen begrenzenden Fläche eines Raumes |
| Dach | Konstruktion, die den obersten Abschluss eines Gebäudes oder Gebäudeteils bildet |
| Wand | im Allgemeinen vertikale Konstruktion, die die Begrenzung eines Gebäudes oder Gebäudeteils bildet. (Unterscheidung zwischen tragenden und nicht tragenden Wänden sowie zwischen Außen- und Innenwänden A Tragende Wände tragen Decken oder Dächer und/oder stellen die Stabilität der Konstruktion sicher B Nicht tragende Wände sind nur zur Teilung/Trennung des Raumes vorgesehen 1 Außenwände trennen Innenräume von der Außenwelt 2 Innenwände teilen/trennen nur Innenräume Kombinationen sind möglich (z. B. können Innenwände tragend und Außenwände nicht tragend sein). |
| Gebäude | vollständig oder teilweise durch umschließende Konstruktionen begrenzter Raum, der für spezifische Verwendungen durch seine Nutzer bestimmt ist |
DIN 277-1 und DIN 277-2 sowie
Flächendefinition nach gif : MF/G:2012
Der anerkannte Standard zur Berechnung von Mietflächen im gewerblichen Bereich ist die gif MF/G. Grundlegend basiert diese Methode auf der DIN 277. Das nachfolgende Bild veranschaulicht die Einführung der Flächenbemessung gemäß DIN EN 15221 Teil 6 im Vergleich zu den beiden genannten Methoden. Zum besseren Verständnis und zum Vergleich bietet die DIN EN 15221 eine direkte Gegenüberstellung der Abgrenzungen zwischen EN 15221 Teil 6 und DIN 227-1, die hier integriert ist. Eine Besonderheit der DIN EN 15221 ist, dass die jeweiligen Grundflächen der Wände den zugehörigen Flächen zugeordnet sind.
In dieser Darstellung bedeuten die im Bild nicht erläuterten Begriffe:
NRF à Netto-Raumflächen
NGF àNetto-Grundfläche
IGF àInnen-Grundfläche
BGF àBrutto-Grundfläche
EF à Ebenenfläche.
Auf dem oben dargestellten Bild sieht man, welche der definierten Flächen auch in der DIN 277 vorhanden sind. Bei der Konstruktionsfläche macht die DIN EN 15221 Teil 6 einen Unterschied zwischen Innen- und Außenkonstruktionsfläche.
Wenn wir darüber sprechen, die Flächendefinitionen international zu harmonisieren, stellt sich angesichts der obigen Abbildungen die Frage, wie weit die Harmonisierung innerhalb Deutschlands bereits fortgeschritten ist. Es ist anzunehmen, dass in Unternehmen und Organisationen teilweise noch mit unterschiedlichen oder sogar veralteten Begriffen gemessen wird.
An dieser Stelle ist es sinnvoll, das Grundverständnis der DIN EN 15221 erneut zu betonen. Diese Norm zielt mit ihrem Teil 7 „Benchmarking“ darauf ab, das Facility Management so gut wie möglich und sinnvoll vergleichbar zu machen.
Auf dem oben dargestellten Bild sieht man, welche der definierten Flächen auch in der DIN 277 vorhanden sind. Bei der Konstruktionsfläche macht die DIN EN 15221 Teil 6 einen Unterschied zwischen Innen- und Außenkonstruktionsfläche.
Wenn wir darüber sprechen, die Flächendefinitionen international zu harmonisieren, stellt sich angesichts der obigen Abbildungen die Frage, wie weit die Harmonisierung innerhalb Deutschlands bereits fortgeschritten ist.
Darüber hinaus ist anzunehmen, dass selbst in den Unternehmen und Organisationen noch mit unterschiedlichen oder gar alten Begriffen gemessen wird.
An dieser Stelle ist es sinnvoll, das Grundverständnis der DIN EN 15221 erneut zu betonen. Diese Norm zielt in ihrem Teil 7 „Benchmarking“ darauf ab, das Facility Management so gut wie möglich und sinnvoll vergleichbar zu machen.
Das Ziel ist eine Harmonisierung nicht nur innerhalb Deutschlands, sondern in der gesamten Europäischen Union. Unter diesem einfachen Ansatz betrachtet, kann die Harmonisierung nur erfolgreich sein, wenn jeder Facility Manager die Bemessungsregeln konsequent befolgt, um die Vergleichbarkeit zu gewährleisten. Dabei geht es nicht nur um die Flächenbemessung, sondern auch um die Facility Produkte, die diesen Flächen in Bezug auf die Kosten zugeordnet werden sollen.
Die Vergleichbarkeit der Leistungen und Kosten und somit die Attraktivität des FM am Markt in Deutschland oder in ganz Europa hängt also von dem Fortschritt dieser Harmonisierung ab.
In vielen Unternehmen ist jedoch zu beobachten, dass diese Norm noch wenig bekannt ist. Noch seltener wird nach ihr gearbeitet. Dies mag daran liegen, dass sie sehr umfangreich ist und für viele neu und daher als anstrengend empfunden wird.
Wir kritisieren, dass der Norm die Tiefe in der Beschreibung der Leistungen fehlt. Viele Facility Produkte sind nicht vollständig beschrieben, was zusätzliche eigene Definitionsansätze für die Leistungen erfordert. Um eine Generik zu erstellen, haben wir den Facility Produkten die Leistungen der GEFMA-Richtlinie 100-2 zugeordnet. So entstand unsere idealtypische Generik als Beratermodell, um unseren Klienten ein Beispiel zu präsentieren. Die nachfolgende Tabelle zeigt am Beispielprodukt 1164, was damit gemeint ist.
Dies könnte eine von vielen möglichen Untersetzungen sein, die zu ebenso vielen individuellen Facility Produkten führen. Ob diese dann im Sinne der Norm vergleichbar sind, bleibt abzuwarten. Am Beispiel der zugeordneten GEFMA-Nummer 6.310.10 wird deutlich, wie wichtig es ist, bei der Bildung von individuellen Facility Produkten Doppellungen oder andere Fehler zu vermeiden.
individuelles Facility Produkt (1164}
| Standardisiertes Facility Produkt | Betrieb technische Gebäude ausrüstung | GEFMA- Nr. | Generisch ,,angedockte" Leistung aus GEFMA-Richtlinie 100-2 |
|---|---|---|---|
| Produktnummer | {1164} | 6.300 | Objekte betreiben |
| Produktnummer | {1164} | 6.310 | Anlagen & Einrichtungen bedienen |
| Produktnummer | {1164} | 6.310.1 | Übernehmen bei Vertragsbeginn |
| Produktnummer | {1164} | 6.310.1.1 | Erstmalige Begehung durchführen |
| Produktnummer | {1164} | 6.310.1.2 | vorhandene Schäden und Mängel protokollieren |
| Produktnummer | {1164} | 6.310.1.3 | vom Auftraggeber oder Vertragsvorgänger einweisen lassen |
| Produktnummer | {1164} | 6.310.2 | Anlagen & Einrichungen abnehmen |
| Produktnummer | {1164} | 6.310.2.1 | Mitwirken bei Abnahmen von Herstellern /Lieferanten |
| Produktnummer | {1164} | 6.310.2.2 | Eigentümerinteressen gegenüber Herstellern / Lieferanten vertreten |
| Produktnummer | {1164} | 6.310.3 | Stellen, Schalten, Steuern, Regeln |
| Produktnummer | {1164} | 6.310.4 | Überwachen (z. B. mittels Gebäude automation oder regelmäßiger Kontrollgänge) |
| Produktnummer | {1164} | 6.310.4.1 | technische Funktionen |
| Produktnummer | {1164} | 6.310.4.2 | baulichen Zustand |
| Produktnummer | {1164} | 6.310.4.3 | Einhaltung der Hausordnung |
| Produktnummer | {1164} | 6.310.4.4 | ordnungsgemäße Reinigung |
| Produktnummer | {1164} | 6.310.5 | Störungen, Schäden oder Gefahrenzustände erkennen, qualifizieren, priorisieren und ggf. weiterleiten an 6.130 Meldungen verfolgen |
| Produktnummer | {1164} | 6.310.6 | Störungen oder kleine Schäden beheben (i.d.R. im Auftrag von 6.130 Meldungen verfolgen, ggf. mit Unterstützung von 6.860 Handwerksdienste erbringen) |
| Produktnummer | {1164} | 6.310.7 | Störungsbehebung Dritter abnehmen |
| Produktnummer | {1164} | 6.310.8 | Verbrauchsstoffe auffüllen |
| Produktnummer | {1164} | 6.310.9 | Optimieren im laufenden Betrieb, z. B. Regelparameter und Absenkzeiten einstellen |
| Produktnummer | {1164} | 6.310.10 | Verbrauchswerte erfassen, Zähler ablesen, Zählerstände an 6.420 Energiemanagement durchführen weiterleiten |
| Produktnummer | {1164} | 6.310.11 | Dokumentieren betrieblicher Abläufe und Vorkommnisse |
| Produktnummer | {1164} | 6.310.12 | Außerbetriebnehmen: Stilllegen (vorübergehend oder endgültig) einzelner Anlagen oder Einrichtungen |
| Produktnummer | {1164} | 6.310.13 | Übergeben bei Vertragsende |
| Produktnummer | {1164} | 6.310.13.1 | Begehung durchführen |
| Produktnummer | {1164} | 6.310.13.2 | vorhandene Schäden und Mängel protokollieren |
| Produktnummer | {1164} | 6.310.13.3 | Auftraggeber oder Vertragsnachfolger einweisen |
Es handelt sich hier nicht um das Energiemanagement, das in der GEFMA-Richtlinie 100-2 unter der Nummer 1.420 geführt wird, sondern nur um Elemente davon, die allgemein als Energiemonitoring bezeichnet werden. Dieser Schritt wurde bewusst gewählt, da das Monitoring im Rahmen des normalen Betriebs vom Bedienpersonal durchgeführt werden kann. Das Energiemanagement hingegen erfordert eine besondere Qualifikation.
Daher sollte man darauf achten, wenn man das Facility Produkt {1171} Energie individuell definiert, in diesem konkreten Beispiel das Energiemonitoring auszuschließen.
Beschreibung der Messung von Abständen
Beim Blick auf die Tabelle „Begriffsdefinition (DIN EN 15221 Teil 6)“ fällt der Begriff „Abstand“ in der ersten Zeile auf. Um andere Begriffe wie Fläche, Volumen usw. zu verdeutlichen, soll am Beispiel des Begriffs Abstand die korrekte Bemessung gemäß der aktuellen Methodik nach DIN EN 15221 Teil 6 erläutert werden. Bei Abständen unterscheidet man zwischen Länge, Breite und Höhe. Dabei gelten folgende Definitionen:
Bei Längen, Breiten und Höhen unterscheidet man Brutto- und Nettoabstand.
| Maß | Messverfahren |
|---|---|
| Länge | Die Länge wird als lineare Ausdehnung von einem Ende zum anderen gemessen (Messung des horizontalen Abstands). |
| Breite | Die Breite ist gleich der Länge oder kleiner als diese. |
| Höhe | Die Höhe wird als lineare Ausdehnung zwischen oben nach unten gemessen (Messung des vertikalen Abstands). |
Maße und Messverfahren
| Maß | Messverfahren |
|---|---|
| Bruttolänge/-breite | wird gemessen als horizontaler Abstand zwischen den äußeren Bekleidungen von Außenwänden oder als horizontaler Abstand zwischen den Mittelpunkten von Innenwänden |
| Nettolänge/-breite | wird gemessen als horizontaler Abstand zwischen den inneren Bekleidungen von Wänden, wobei sonstige Komponenten (z.B. Öffnungen) nicht berücksichtigt werden |
| Bruttohöhe | wird gemessen als vertikaler Abstand zwischen der Oberseite eines Fertigfußbodens oder dem angrenzenden Grund und der Oberseite des Fertigfußbodens eines darüber befindlichen Raumes (Geschosshöhe) oder der Oberseite der Dachbelags |
| Nettohöhe | wird gemessen als vertikaler Abstand zwischen der Oberseite eines Fertigfußbodens oder dem angrenzenden Grund und der Unterseite einer Decke oder eines Daches, die/das sich darüber befindet, wobei sonstige Komponenten nicht berücksichtigt werden |
| lichte Höhe | wird gemessen als vertikaler Abstand zwischen der Oberseite eines Fertigfußbodens oder der Erdgleiche und der Unterseite der darüber befindlichen abgehängten Decke, wobei sonstigeKomponenten nicht berücksichtigt werden |
| Konstruktionshöhe | bedeutet Bruttohöhe minus Nettohöhe |
Beim Messverfahren ist zu beachten, dass in der jeweils untersten Gebäudeebene die Bruttohöhe bis zur Unterseite des Bodens, also bis zur Oberkante der darüber liegenden Ebene, gemessen wird. Es kann auch vorkommen, dass die Mindestdurchgangshöhe kleiner ist als die lichte Höhe. Die nächsten drei Bilder veranschaulichen das korrekte Messverfahren für die Kategorie „Abstand“ gemäß der DIN EN 15221 Teil 6.
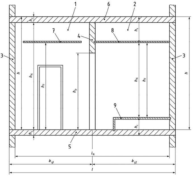
Messung der Abstände in einer vertikalen Ebene
| Legende | ||
| 1 Raum 1 | 2 Raum 2 | 3 Außenwand |
| 4 Innenwand | 5 Boden | 6 Decke oder Dach |
| 7 abgehängte Decke | 8 Deckenbekleidung | 9 Doppelboden |
| bg1 Bruttobreite Raum 1 | bg2 Bruttobreite Raum 2 | l Bruttolänge |
| lN Nettolänge | h Bruttohöhe | hc Konstruktionshöhe |
| hp Durchgangshöhe | hN Nettohöhe | hF lichte Höhe |
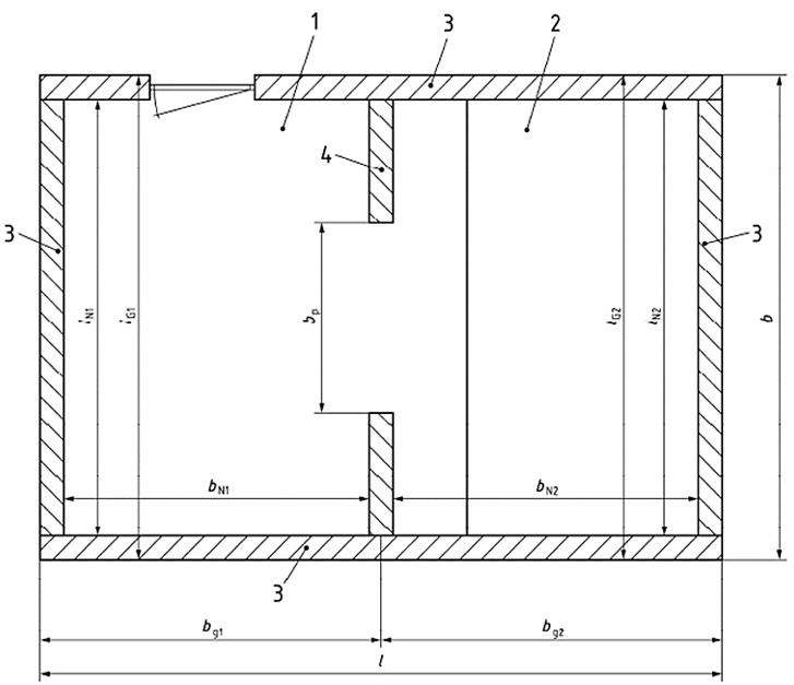
Messung der Abstände in einer horizontalen Ebene, Draufsicht
| Legende | ||
| 1 Raum 1 | 2 Raum 2 | 3 Außenwand |
| 4 Innenwand | b Bruttobreite | bg1 Bruttobreite Raum 1 |
| bg2 Bruttobreite Raum 2 | bp Durchgangsbreite | bN1 Nettobreite 1 |
| bN2 Nettobreite 2 | l Bruttolänge | lG1 Bruttolänge 1 |
| lG2 Bruttolänge 2 | lN1 Nettolänge 1 | lN2 Nettolänge 2 |
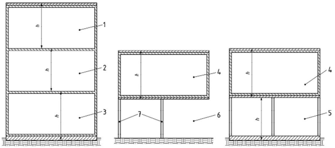
Messung von Bruttoabständen in unterschiedlichen Gebäuden mitmehreren Ebenen
| 1 oberste Geschossebene | 2 Zwischengeschossebene | 3 unterste Geschossebene |
| 4 umschlossene Fläche | 5 überbaute Fläche | h Bruttohöhe |
| 6 überbaute Gebäudefläche | 7 Säule |
Wenn der Teil 6 der DIN EN 15221 anstelle von gif MF/G zur Definition der Miet-Grundfläche verwendet wird, sollte diese Tabelle verwendet werden.
Die DIN EN 15221 Teil 6 empfiehlt bei der Definition der Miet-Grundfläche, eines der in der Tabelle definierten Maße zu verwenden.
Im Anhang 06 Übung Flächenmessungsmatrix gibt es eine Übung zur Flächenbemessung.
Die folgenden Grundflächenbereiche sind in der BGF enthalten:
Außenwände
Außensäulen und -pfeiler
tragende Wände und Trennwände
Innensäulen und -pfeiler
nicht tragende Wände
flexible und bewegliche Trennwände
Räume für mechanische Installationen (z. B. Aufzugs- und Kesselräume sowie Heiz- und Kühlgeräte)
Räume für Elektroinstallationen (z. B. Leiter und Generatoren sowie Hauptkommunikationsräume)
Räume für sonstige technische Installationen (z. B. Abfallmanagement-Installationen und Lager für Instandhaltung von Facilities)
Treppenräume, Aufzugsschächte und Rolltreppen
Korridore und sonstige Verkehrsflächen
Sanitärflächen (z. B. Toiletten, Duschen und Umkleideräume sowie Räume für Reinigungspersonal)
zentrale Nutzflächen (z. B. Eingangshallen und Cateringbereiche sowie Gesellschafts- und Freizeitbereiche)
lokale Nutzflächen (z. B. Besprechungsräume, Ablage- und Lagerbereiche sowie Druck- und Kopierbereiche)
Arbeitsbereiche (z. B. Büros, Laboratorien, Ladenflächen, Unterrichtsräume oder Operationssäle).
Flächenunterkategorien
| Technikflächen | |
|---|---|
| Mechanisch | Aufzugs- und Haustechnikräume Räume für Wasserver- und Wasserentsorgung Räume für Gase und Flüssigkeiten Räume für Heiz- u. Kühlgeräte, Raumlufttechnik |
| Elektrisch | Räume für elektrische Leiter und Generatoren Räume f. Zubehör/Befestigungen f. Beleuchtung/Stromversorgung Räume für Photovoltaik-, Brennstoffzellen, Windkraftanlagen Hoch- / Niederspannungsschalträume Hauptkommunikationsräume |
| Sonstiges | Begehbare Versorgungsschächte /-rohre, Wartungstunnel Abfallräume mit Müllsammelbehältern und Müllpressen Lagerräume für Instandhaltung von Facilities / Werkstätten |
| Verkehrsflächen | |
| Horizontal | Flure und Fördereinrichtungen Eingangshallen und Aufzugsvorräume Feuerkorridore und Fluchtwege |
| Vertikal | Treppenräume Aufzugsschächte und Ro eppen Rampen und Aufzugsplattformen |
| Sanitärflächen | |
| Sanitärfläche | Duschräume Umkleideräume Toilettenräume Räume für Reinigungspersonal |
| Nutzflächen | |
| Büros | Großraumbüros, Teambüros. Projektbüros Zellenbüros. Kombibüros Arbeitslounges, Denkzellen, Teeküchen, Meeting-Points |
| Produktion | Produktionshallen Laboratorien Raffinerien |
| Einzelhandel | Ladenflächen Ausstellungsräume Lagerräume |
Flächenunterkategorien
| Nutzflächen (Fortsetzung) | |
|---|---|
| Diverses | Empfangs- und Wartebereiche Restaurant und Cafeteria Zentrale Versammlungsräume (z.B. Auditorien) Gesellschafts- und Freizeiträume Reprografieräume Archivräume Kommunikationsräume (z. B. Telefon- und Schalträume) Sicherheitsräume (z.B. Sicherheitsüberwachungsräume) Dezentrale Besprechungsräume Ablage- und Lagerräume Druck-, Kopier- und Postbereiche Vorrats- und Pausenbereiche |
| Bildung | Unterrichtsräume Bibliotheken und Lemräume Ausstellungsbereiche |
| Krankenhäuser | Medizinische Bereiche Operationssäle Diagnoseräume |
| Unterkünfte | Unterbringungs- und Wohnbereiche Hotelbereiche Studentenwohnheim Seniorenheim Gefängniszellen |




